Haus Edelweiß

Wohnfläche 126 m²

Kostengünstiges Eigenheim mit ausgeklügeltem Raumnutzungskonzept für junge Familien.
Optional: Mit Keller

Erdgeschoss
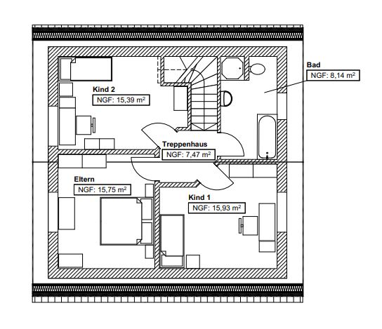
Obergeschoss